SITE-X C3003 — переносной рентгеновский генератор, предназначенный для работы в составе кроулера. Используется для контроля кольцевых сварных соединений трубопроводов с применением панорамной схемы просвечивания. Диапазон анодного напряжения 90 – 300 кВ. Максимальное проникновение по стали составляет 54 мм с фокусного расстояния 700 мм на плёнку Agfa D7+Pb, оптическая плотность 1.5, экспозиция 10 минут. Внесён в реестр средств НК ПАО «Газпром».
Генератор SITE-X C3003 относится к полупериодным аппаратам, в которых питание рентгеновской трубки осуществляется импульсным напряжением с большой длительностью импульса. Регулировка анодного тока возможна в диапазоне от 1 до 5 мА с шагом 0.1 мА. При работе на полной мощности максимальный ток трубки составляет 3 мА.
360°×40°
Максимально полезный угол раскрытия рентгеновского пучка
Некоторые трубы могут достигать длины до 12 метров, что делает проверку качества сварки непростым испытанием даже для опытных дефектоскопистов. Для решения подобных задач панорамные генераторы SITE-X были адаптированы для использования с кроулерами. SITE-X C3003 имеет четыре точки крепления на каждом конце для установки на любую модель кроулера с помощью простых переходников.
Панорамное просвечивание из центра трубы позволяет получить рентгенограмму кольцевого сварного шва целиком зa одну экспозицию. Такой метод позволяет быстрее, проще и эффективнее обследовать протяжённые участки трубопроводов, сводя к минимуму энергопотребление.

Процесс проведения контроля
Панорамный генератор для кроулера можно легко трансформировать в стандартный, и наоборот. SITE-X C3003 будет без сбоев работать с блоком управления SCU286. Эта особенность позволяет не приобретать дополнительное оборудование для каждого отдельного применения.
Инновационной разработкой в конструкции рентгенаппаратов ICM SITE-X является система охлаждения. Высокоэффективный теплообменник снижает температуру анода в два раза, что увеличивает продолжительность непрерывной работы генератора. Модель C3003 имеет 100% цикл работы на максимальном режиме.
Источником ионизирующего излучения в аппарате SITE-X C3003 служит стеклянная рентгеновская трубка Lohmann C300/5 NRF со стержневым анодом. Фокусное пятно размером Ø5×0,8 мм вынесено за пределы высоковольтного генератора с элегазовой изоляцией. Такая конфигурация позволяет сократить объём свинца, необходимого для защиты персонала группы А от побочного и рассеянного излучения.
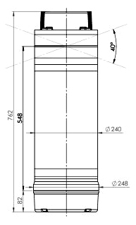
Алюминиевый корпус излучателя имеет двухслойное эпоксидное покрытие и защищён от воздействия пыли и влаги по классу IP65, что обеспечивает надёжную работу аппарата в полевых условиях. Выход излучения перпендикулярен оси моноблока, окно выхода обозначено двумя красными линиями с наружной стороны корпуса. Максимально полезный угол раскрытия рентгеновского пучка составляет 360°×40°(2×20°).

Габариты SITE-X C3003
SITE-X C3003 оснащён запатентованной автоматической системой коррекции пучка излучения. Идеальная однородность гарантируется благодаря регулировке контура обратной связи в реальном времени, а значение EMR (Eccentric Means Ratio) составляет менее 5%. Соответственно, нет необходимости компенсировать неоднородность луча путём центрирования генератора, что сокращает его подготовку к работе.
Полупериодные панорамные аппараты SITE-X с максимальным напряжением от 300 кВ внесены в перечень средств неразрушающего контроля качества сварных соединений, сформированный департаментом предприятия «Газпром». Согласно заключению ООО «Газпром ВНИИГАЗ» № 31323949-238-2017 регламентированная радиационная толщина в направлении просвечивания для SITE-X C3003 составляет до 60 мм по стали.
Компания ICM начала развивать свою продуктовую линейку с выпуска панорамных рентгеновских генераторов. Значительное расширение ассортимента SITE-X произошло в 1995-1998 годах за счёт появления серии аппаратов с выходным напряжением от 180 до 360 кВ. Технологические возможности совершенствовались на каждом этапе разработки, исходя из качества, общей надёжности и необходимости значительного увеличения срока службы рентгеновской трубки.
Ранее модельный ряд кроулерных панорамных генераторов SITE-X насчитывал 10 вариантов устройств, в том числе три версии SITE-XS на 200, 225 и 250 кВ. В настоящее время выпускаются только аппараты C1802 и C3003 как наиболее востребованные среди пользователей. Данные модификации выделены в сравнительной таблице.
| Модель | C1802 | C2004 | C2254 | C2504 | C3003 | C3203 | C3603 |
|---|---|---|---|---|---|---|---|
| Диапазон анодного напряжения | 50 – 180 кВ | 70 – 200 кВ | 70 – 225 кВ | 70 – 250 кВ | 90 – 300 кВ | 90 – 320 кВ | 120 – 360 кВ |
| Диапазон анодного тока | 1 – 3 мА | 1 – 7 мА | 1 – 7 мА | 1 – 5 мА | 1 – 5 мА | 1 – 5 мА | 1 – 5 мА |
| Ток трубки при полной мощности | 2,0 мА | 4,5 мА | 4,0 мА | 3,6 мА | 3,0 мА | 2,8 мА | 2,5 мА |
| Фокусное пятно | Ø4×0,5 мм | Ø5×0,8 мм | Ø5×0,8 мм | Ø5×0,8 мм | Ø5×0,8 мм | Ø5×0,8 мм | Ø6×1,0 мм |
| Проникновение в сталь | 11 мм | 32 мм | 39 мм | 46 мм | 54 мм | 58 мм | 69 мм |
| Рабочий цикл при +30 °С | 50% | 100% | 100% | 100% | 100% | 100% | 60% |
| Габариты | Ø250×653 мм | Ø248×697 мм | Ø248×697 мм | Ø248×697 мм | Ø346×831 мм | Ø248×757 мм | Ø280×875 мм |
| Масса (без колец) | 9,5 кг | 28 кг | 28 кг | 28 кг | 32 кг | 32 кг | 48 кг |
Для панорамных рентгеновских генераторов SITE-X, работающих в связке с кроулером, разработан сверхлёгкий блок управления CCU186 с батарейным питанием. Главным преимуществом устройства является то, что все функции стандартных блоков управления доступны в конфигурации кроулера: автоматический медленный предварительный нагрев, постепенное повышение напряжения с каждой экспозицией, выбор заданных значений с шагом 1 кВ и 0,1 мА и т.д.
Размещение на кроулере блока управления вместе с дисплеем и клавиатурой подвергает эти хрупкие компоненты излишним нагрузкам и экстремальным воздействиям внутри трубы. Решением компании ICM стал независимый карманный пульт дистанционного управления CCU186R. Он используется для программирования параметров экспонирования, а также для управления процедурой предварительного нагрева. По завершении данных операций пульт ДУ может быть отключен.

>
Блок управления производится исключительно как продукт OEM (Original Equipment Manufacturer). Это означает, что он всегда является неотъемлемой частью более крупной сборки и должен быть интегрирован в систему рентгеновского контроля. Все кроулерные аппараты SITE-X автоматически идентифицируются и управляются CCU186: взаимозаменяемость является полной и может быть мгновенно реализована на месте.
CCU186 образует прямую и простую связь с электроникой кроулера. В то время как пульт CCU186R управляет предварительным нагревом и процедурой программирования кВ и мА, кроулер, замыкая простой контакт, контролирует выполнение экспонирования и его продолжительность. Для каждой из экспозиций он получает подтверждение того, что они были выполнены эффективно и в точном соответствии с выбранными радиологическими параметрами.
Чтобы предоставить пользователю максимум возможностей, CCU186 поставляется установленным на радиаторе без какой-либо крышки. Устройство необходимо изолировать с помощью плоской уплотнительной ленты в комплекте, а также использовать герметичные сальники для различных кабелей. Для оптимального рассеивания тепла рекомендуется устанавливать блок в горизонтальном положении радиатором сверху.
Кабель для соединения с генератором SITE-X оснащён круглой 9-контактной розеткой. Другой его конец снабжён 9 клеммами, помеченными от A до I, которые должны быть подключены к соответствующим клеммам на колодке блока CCU186. Этот кабель имеет стандартную длину 2 метра, а его внешний диаметр 17±1 мм.
Кабель для пульта дистанционного управления разделён на две части. Одна часть длиной 20 см позволяет подключить CCU186 к розетке, другая часть длиной 2 м соединяет эту розетку и пульт ДУ.

Схема подключения компонентов
CCU186 предназначен для работы за счёт питания от блока батарей с номинальным напряжением 120 В постоянного тока, обычно это 10 элементов по 12 В. Широкий допуск по уровням напряжения от 105 до 140 В означает, что все типы батарей могут использоваться от полностью заряженного до почти полностью разряженного состояния элементов без потери производительности.
Также можно использовать источник питания 120 В постоянного тока, полученный путём выпрямления и сглаживания сети 220 В / 50 Гц с помощью понижающего трансформатора или от генератора. Единственные условия: напряжение должно оставаться в установленных пределах, а остаточная пульсация не должна превышать 7 В. В случае сети с частотой 50 Гц, работающей через двухполупериодный выпрямитель, это соответствует фильтрующему конденсатору на 10 000 мкФ.
Блок управления CCU186 специально разработан для использования с генераторами SITE-X при внутритрубных исследованиях. С этой целью источник питания был максимально упрощён, сохранив высокую надёжность и производительность при небольших размерах. Фактически он способен обеспечивать непрерывную мощность 900 Вт и гарантировать, что напряжение питания генератора останется стабильным независимо от значений напряжения батареи.
С помощью точной системы управления установленные значения киловольт и миллиампер поддерживаются с точностью до ±0,5%. Таким образом, можно получить постоянные значения интенсивности и контрастности на всех снимках без каких-либо корректировок времени экспозиции.
Для экономии заряда CCU186 может автоматически перейти в режим ожидания, снизив общее энергопотребление до минимума. Например, если в течение нескольких минут не поступало ни одной команды, система отключит охлаждающие вентиляторы.
В случае непредвиденного отключения электропитания блок управления сохранит все настройки в памяти, что позволит без труда перезапустить устройство.
Для рентгеновских генераторов SITE-X и SITE-XS доступен широкий спектр принадлежностей. Они были разработаны специалистами в области неразрушающего контроля и для них. Все аксессуары прошли испытания в самых сложных полевых условиях и доказали свою эффективность и надёжность. Всё — от сигнальной лампы до транспортировочного ящика — было создано, чтобы упростить рабочий процесс и повысить его продуктивность.
![]() |
Сигнальная лампа Выносное сигнальное устройство с красным мигающим фонарём, выполненное в усиленном корпусе. Крепится к блоку управления SCU286 с помощью соединительного кабеля длиной 20 метров. Доступны два варианта настройки режима работы. Основание конструкции имеет резьбу стандарта 1/4-20UNC, что позволяет устанавливать лампу на штатив-треногу либо на магнитную опору.
|
|---|---|
![]() |
Аудиовизуальная сигнализация Выносное сигнальное устройство, на панели которого установлен красный мигающий фонарь и блок звуковой сирены с уровнем громкости 102 дБ. Соединяется с пультом управления SCU286 с помощью кабеля длиной 20 метров. Основание конструкции имеет резьбу стандарта 1/4-20UNC для установки сигнализации на штатив-треногу либо на магнитную опору. Габариты 280×180×170 мм. Масса 3 кг. |
![]() |
Штатив треножный Совместим со световым и звуковым сигнальными устройствами. Для максимальной прочности и устойчивости складные телескопические ножки закреплены вокруг центральной стойки, высота регулируемая: от 50 до 140 см. Головка имеет стандартное крепление, как у штативов для камер. Длина в сложенном виде 56 см. |
![]() |
Коллиматор Представляет собой состоящее из двух частей кольцо на свинцовой основе с экраном-заглушкой. Коллиматор может быть закреплён по периметру панорамного генератора SITE-X для формирования направленного пучка рентгеновского излучения. |
![]() |
Соединительный кабель Позволяет установить USB-соединение между блоком управления SCU286 и персональным компьютером. Это делает возможным управление работой рентгеновских генераторов SITE-X и SITE-XS через интерфейс ПК. |
![]() |
Транспортировочный ящик ALUCASE Это большой алюминиевый кейс для безопасной транспортировки рентгеновских аппаратов SITE-X и SITE-XS. Корпус разделён на индивидуальные отсеки, предназначенные для размещения одного генератора, одного блока управления, кабеля питания длиной 20 метров, соединительного кабеля длиной 10 метров и одного аудиовизуального сигнального устройства со штативом. |
| Геометрия излучения | панорамная | ||
|---|---|---|---|
| Электропитание | от батареи кроулера | ||
| Диапазон выходного напряжения | 90 – 300 кВ | ||
| Шаг выбора выходного напряжения | 1 кВ | ||
| Диапазон тока трубки | 1 – 5 мА | ||
| Ток трубки при полной мощности | 3,0 мА | ||
| Шаг выбора тока трубки | 0,1 мА | ||
| Максимальный полезный угол излучения | 360°×40°(2×20°) | ||
| Размер оптического фокального пятна (EN12543) | Ø5×0,8 мм | ||
| Собственная фильтрация | 2,5 мм (Al) + 0,4 мм(Ni) | ||
| Встроенный коллиматор | нет | ||
| Рабочий цикл при температуре окружающей среды +30 °С | 100% | ||
| Проникновение в сталь (FFD=700 мм, D7+pb, D=1.5, T=10 мин) | 54 мм | ||
| Микроконтроллер для измерения значений кВ и мА | есть | ||
| Доза утечки на расстоянии 1 м на полной мощности | < 10,0 мЗв/ч | ||
| Давление изоляции SF6 при +20 °С | 5,0 кг/см2 | ||
| Напряжение питания охлаждающего вентилятора | 24 В постоянного тока | ||
| Уровень пылевлагозащиты | IP65 | ||
| Защитные кольца | нет | ||
| Положение соединительной розетки | аксиальное/радиальное | ||
| Диапазон рабочих температур | от -25 до +70 °С | ||
| Диапазон температур хранения | от -40 до +80 °С | ||
| Габаритные размеры | Ø 346×831 мм | ||
| Масса без защитных колец | 32 кг | ||
| Тип источника питания | Pb или Cd-Ni батареи | ||
|---|---|---|---|
| Уникальный диапазон напряжения питания | от 105 до 140 В постоянного тока | ||
| Максимальный средний ток (300 кВ / 3 мА – SITE-X C3003) | 7 А | ||
| Прямое измерение кВ и мА | есть, с точностью ±0,5% | ||
| Отображение запрограммированных параметров (CCU186R) | есть | ||
| Шаг программирования напряжения и тока (CCU186R) | 1 кВ / 0,1 мА | ||
| Полезный диапазон внутреннего таймера предварительного нагрева (CCU186R) | от 2 до 30 мин, с шагом 1 мин | ||
| Точность контроля напряжения батареи | ±0,2% | ||
| Светодиодный дисплей с переменной яркостью (CCU186R) | линейный 1×8, с антибликовым экраном | ||
| Сенсорная полиэфирная буквенно-цифровая клавиатура (CCU186R) | 12 клавиш | ||
| Общее включение | управляется кроулером | ||
| Функции «СТАРТ», «СТОП» и время выдержки | управляется кроулером | ||
| Полуавтоматический предпусковой подогрев на выбранных кВ | есть | ||
| Диапазон рабочих температур | от -25 до +85 °С | ||
| Диапазон температур хранения | от -40 до +85 °С | ||
| Габаритные размеры CCU186 | 280×170×162 мм | ||
| Габаритные размеры CCU186R | 100×211×26 мм | ||
| Масса общая | 4 кг | ||
Введите ваше Имя и Фамилию:
Отправитьили
Войдите, чтобы оставить комментарий